STILL WATER LAB

STILL WATER LAB
富士山麓 ホテル旅館 湖 49,800万円
富士の絶景と森の静寂が共存するリトリート
多様なニーズに応えるマルチユースなユニット
富士箱根国立公園内に位置し、都内からアクセスしやすい森と湖のリゾート「山中湖」。富士五湖の中で最も富士山に近く、湖越しに眺めるその壮大な姿は圧巻だ。四季折々に咲き誇る花々、秋の紅葉、冬の樹氷が織りなす美しい自然が広がり、多くの旅行者を国内外から引き寄せている。
そんな山中湖のほとりから森の中へ少し足を踏み入れると、2023年にフルリノベーションを経て生まれ変わったユニットが姿を現す。宿泊施設としてはもちろん、トレーニングセンターとしても利用可能なこの施設は、洗練されたデザインと機能性を融合させた空間が広がる。広々としたレイアウトの各部屋にはバスルームが完備され、カジュアルで居心地の良いインテリアが滞在者を迎える。
大きな窓からは富士山の雄大なシルエットが一望でき、その絶景が滞在の価値をさらに高める。施設内にはトレーニングジム、会議室、広々としたダイニングエリア、そしてサウナルームを備え、多様なニーズに応えるマルチユースなユニットとしてのポテンシャルを秘めている。
music select |Avicii – Wake Me Up|04:32




































| 物件概要
物件名 / STILL WATER LAB(スティルウォーターラボ)
販売価格 / 49,800万円(税込)
物件種別 / 宿泊施設
所在地 / 山梨県南都留郡山中湖村
交通 / 東富士五湖道路「山中湖IC」まで約7.3㎞ (車約12分)
土地面積 / 3305㎡(約999.76坪)
地目/原野
権利/所有権
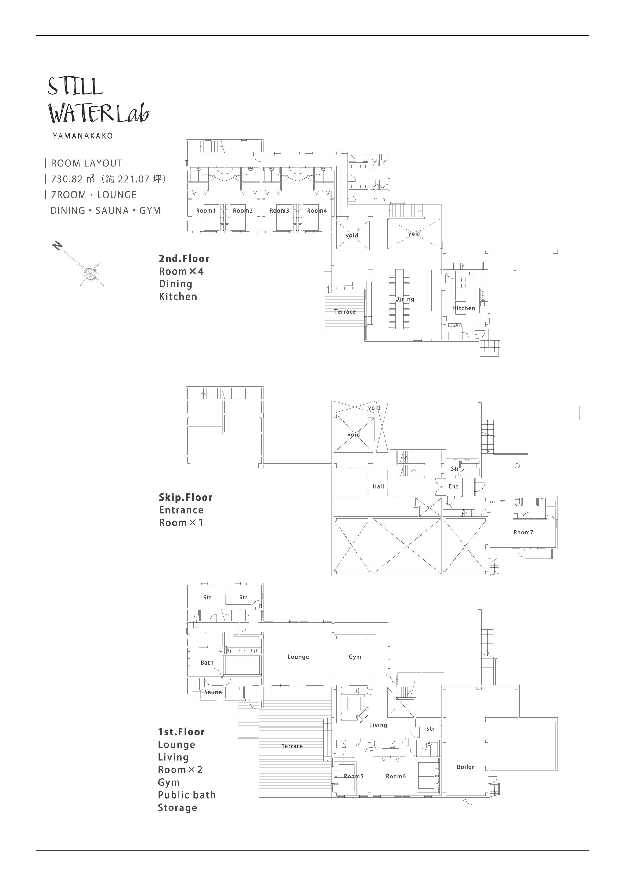
延床面積 / 730.82㎡(約221.07坪)
建物構造 / 鉄筋コンクリート造亜鉛メッキ鋼板ぶき2階建
間取り / 6BEDROOM・LOUNGE・LIVING・GYM・KITCHEN・PUBLIC BATH・SAUNA
建築年 / 1979年12月新築(2023年フルリモデル)
現況 / 空室
眺望 / 富士山
温泉 / なし
その他 / 旅館営業許可済み
取引態様 / 仲介
物件番号 / FK-0370
ニュースレター
新着物件や非公開物件をメールマガジンで配信しています。
最新情報をいち早くお届けしていますのでぜひご登録ください。
Sign up to our mailing list for the newest properties, private properties delivered to your inbox.