PORCO

PORCO
湯河原 戸建 山 5,800万円
EVER GREEN
趣味と温泉を静かに楽しむ山荘暮らし
湯けむり漂う山懐、緑深き山肌とその先に広がる相模湾を静かに眺める別荘街に佇むユニット。周囲の自然を背景に趣味と温泉を静かに楽しむ湯河原の別荘をご紹介します。
Music select | Andy Williams – Raindrops Keep Fallin’ on My Head 03:08
| The House
健康的でゆったりとしたリズム
2000年に竣工した建物は在来工法で建てられた木造2階建ての構造となる。施工は数寄屋建物から神社仏閣までを手掛ける伊豆の名工「加藤美建」によるものとなるが、建物のデザインは古民家的な日本の風情と使いやすさがミックスされたジャパンモダンなテイストに仕上がっている。この家は現オーナーが注文したもので、湯河原の山間自然を背景に風抜けの気持ちよさや陽光など健康的でゆったりとしたリズムでの暮らしを軸に、趣味の車やオートバイ、絵画、写真など、日常の暮らしの中にホビーがある空間を装備したものとなる。
|年を取った時の暮らし易さを見据えて設計されている
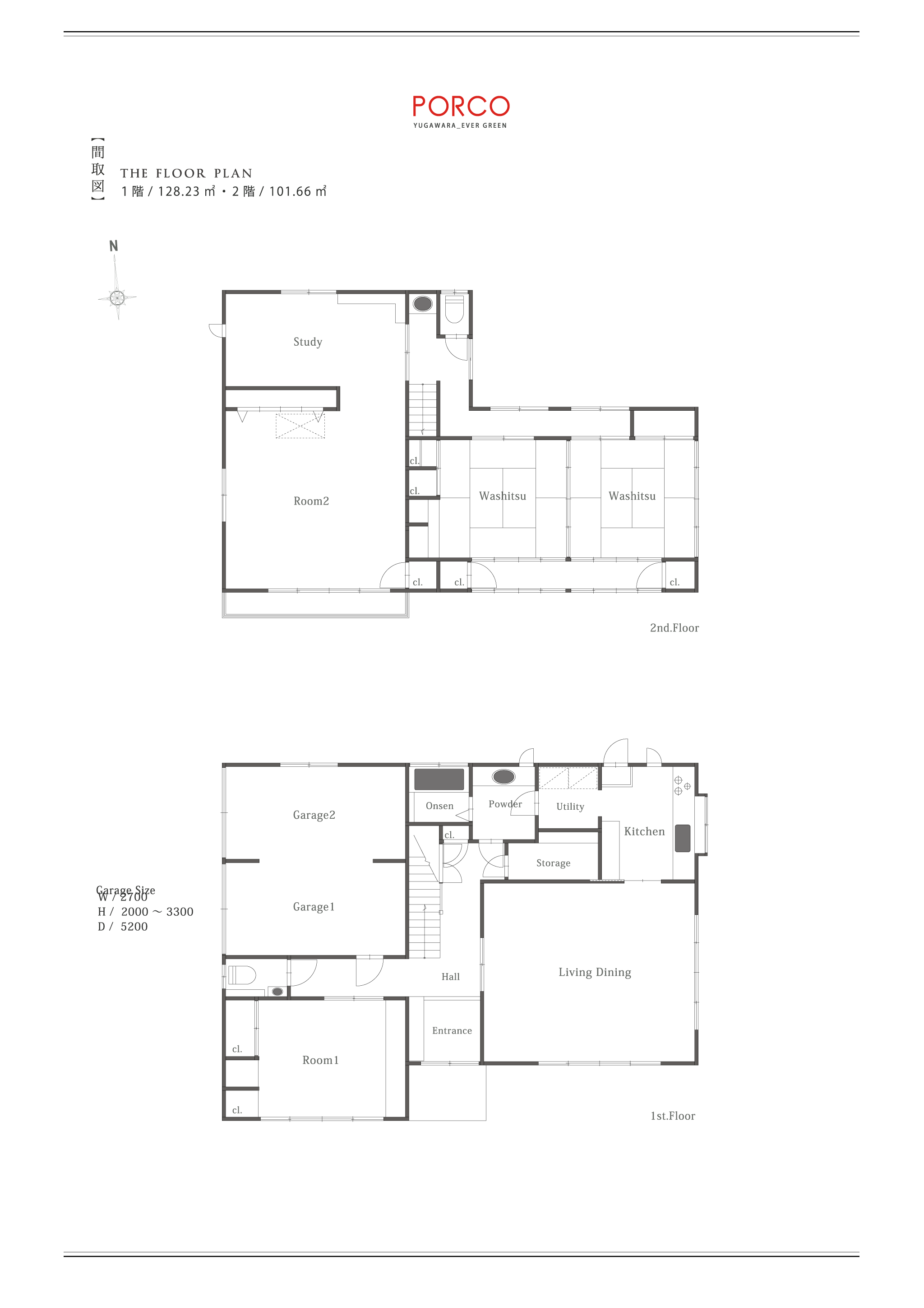
部屋のレイアウトとしては3KDKとインナーガレージとなる。1階にはLDKとバスルーム、8帖大の居室が用意されている。眺めの良さ考えれば2階にLDKを置きたいところだが、この家は年を取った時の暮らし易さを見据えて設計されていることからこのようなプランになる。1階から見る湯河原の山並みと海の景色も十分に美しいことや、各部屋は庭に面していることで広がりがあり、むしろこのレイアウトが正解に思える。2階にはゲスト用のある続き間の和室と、マスターベッドルーム、書斎が用意されている。このフロアーは周囲の山並みと谷の上を漂うような浮遊感があり、爽快な風の抜けも合わさり気持ち良い。また、寝室とつながる書斎の書棚にはコレクションされたものが並びそれらに囲まれる感じがじつによい。また、建築を担当した工務店の定期的なメンテナンスにより建物が健康な状態に維持されていることも評価したいポイントとなる。
| Garage
こだわりと知恵がつまった空間
本件ユニットの構成で重要な部分となるガレージは車両が3台格納できる空間となる。長年に渡り、車やバイクと関わってきた現オーナーのこだわりと知恵がつまった空間となる。
| View
海の眺めと温泉が両方とも得られる希少な場所
ユニットの周囲にはバリエーション豊かな眺めが広がる。東西に箱根外輪山から相模湾に延びる尾根がそびえ、四季の移り変わりに伴って色を変える山肌や、谷間から湧き上がる霧、旋回する鳥、身の先に広がる空など、ドラマチックに変化する山岳自然の情景が美しい。南側には谷に沿って点在する温泉場の先に相模湾を眺める。湯河原では海の眺めのあるエリアは海の近くとなり、その場合、温泉を引き込める場所はほぼ無いが、本件のあるエリアは海の眺めと温泉が両方とも得られる希少な場所となる。
| 天然温泉
無色透明で癖の無いしっとりとした湯
本件にはコミュニティ内で湧出する天然温泉が引き込まれている。見た目は無色透明で癖の無いしっとりとした湯だが身体の芯から温まりその持続性が特徴といえる。
源泉番号 / 第157号
泉質 / カルシウム硫酸塩温泉
低張性・弱アルカリ性・高温泉
供給元 / 万葉郷別荘地
給湯量 / 3.6L(毎分)
受湯口数 / 1口
|Location
湯河原
神奈川県西端の町「湯河原」、海と山が隣接する風光明媚な自然を背景に落ち着きのあるこじんまりとした宿が点在する玄人好みの温泉場として親しまれている。この町は隣接する熱海や箱根の陰に隠れがちだが町を知るほどに味わいが深まる。
|温泉場
湯煙が立ち昇る谷間の温泉街から北斜面のくねった坂を上る。周囲は車の通りが極端に少なく自然が奏でる音が支配する。1万メートルの上空を時折通過する旅客機の音が気になるほどだ。また、箱根外輪山から流れる風も心地よく木々の枝葉をなめていく様は爽快である。空の色は刻々と移り変わり、霧に煙る山々、零れ落ちそうな満点の星空、ゆるやかに、そしてドラマチックに変化する壮大で美しい湯河原の自然にもてなされているようにこの家は佇んでいる。
- ・海浜公園(プール・テニス)約5.4km
- ・湯河原カンツリー倶楽部 約9.0km
- ・芦ノ湖(関所)約21.7km
- ・熱海駅 約12.3km
- ・真鶴半島 約12.0km
- ・福浦港 約7.4km
- ・ターンパイク 約34km
|まとめると
「別荘のつもりが終の棲家」
本件ユニットの魅力は湯河原山間部の豊かで美しい自然を眺めるロケーション、日本建築の名工が手掛けた骨太の長寿命の建物、趣味を日常的にできる空間、家族の行き来を考慮したレイアウト、そして高齢でも使いこなせるプランニング、天然温泉といった、人生のセカンドステージ以降を色々な意味で健やかに過ごせる空間に仕上がっていることだろう。そう考えると、初めは別荘やセカンドハウスとして通う家が、年齢のステージを重ねるごとに、このユニットの役割と居心地の良さから「別荘のつもりが終の棲家」になっているかもしれない。
| 物件概要
物件名 / PORCO(ポルコ)
販売価格 / 5,800万円
物件種別 / 戸建
所在地 / 湯河原町宮上
交通 / JR東海道線「湯河原駅」約4.3㎞
土地面積 / 320.67㎡(約97.00坪)
建物面積 / 229.89㎡(約69.54坪)
建物構造 / 木造合金メッキ鋼板葺2階建
間取り / 3LDK + GARAGE
建築年 / 2000年11月新築
現況 / 居住中
特徴 / インナーガレージ
眺望 / 相模湾・山並み・温泉街
温泉 / あり
取引態様 / 仲介
物件番号 / YK-0374
ニュースレター
新着物件や非公開物件をメールマガジンで配信しています。
最新情報をいち早くお届けしていますのでぜひご登録ください。
Sign up to our mailing list for the newest properties, private properties delivered to your inbox.


































