LEAVES / Villa C

LEAVES / Villa C
軽井沢 ホテル旅館 高原 22,500万円
|LEAVES
安定稼働を見込める軽井沢エリアの高付加価値ヴィラ
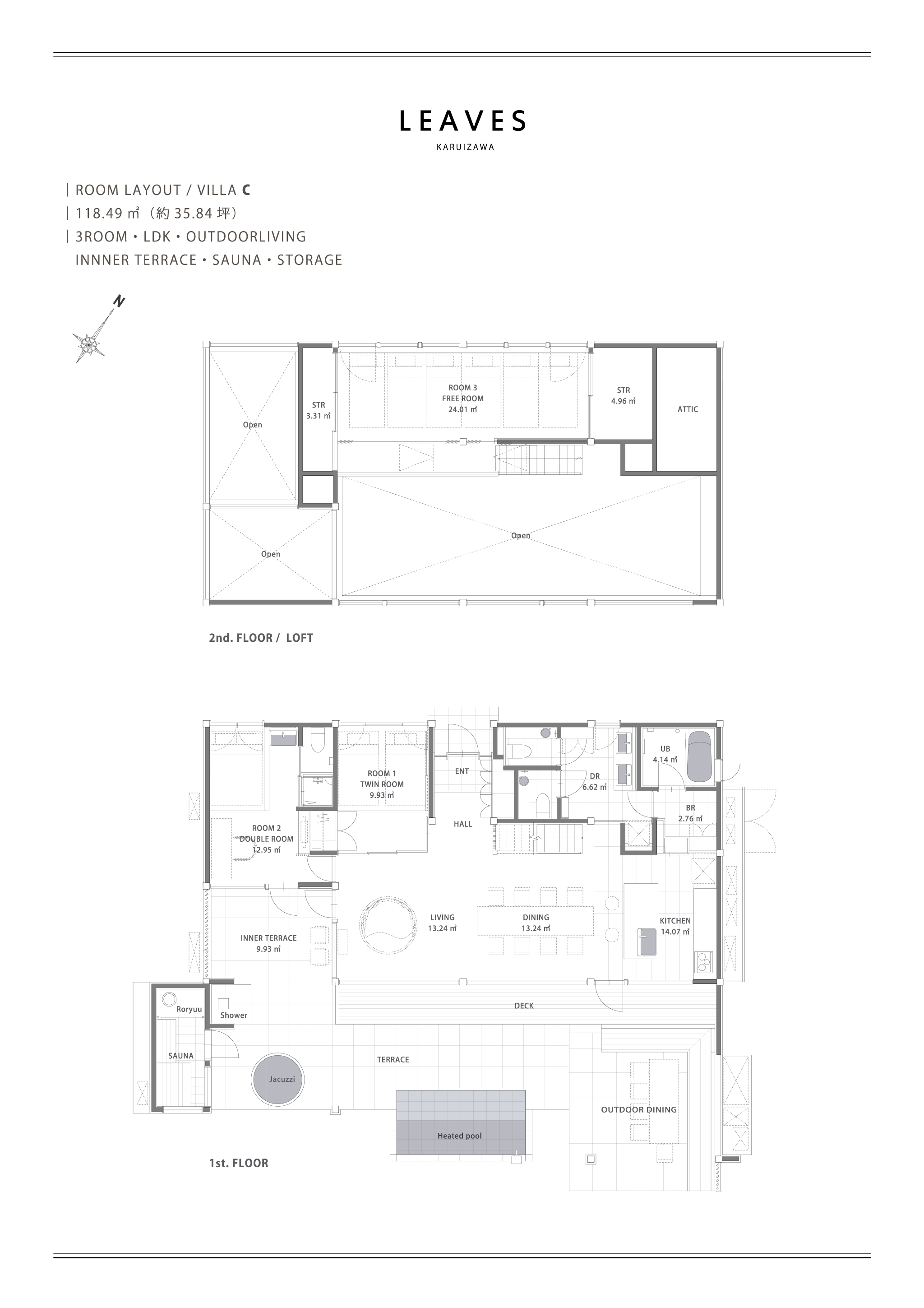
LEAVES(リーブス)VILLA C」は、軽井沢町長倉エリアに位置する高付加価値の宿泊用ヴィラである。建物は2019年築・2階建ての木造建築で、延床118.49㎡・最大8名収容という競争力の高いスペックを備えている。ヒーテッドプール、ジャグジー、サウナ、床暖房などの高単価宿泊に寄与する設備群を有し、年間を通じた稼働が期待できる。落ち着いた立地と林との一体感を生む設計により、非日常性を求めるゲスト層からの需要が高く、単価向上に直結する特性を持つ。
music select| Dancin’ in the Moonlight – King Harvest
❚ 物件概要
| 物件名 | LEAVES / VILLA C |
| 物件種別 | 一棟貸し宿泊施設 |
| 販売価格 | 22,500万円(税抜) |
| 所在地 | 長野県北佐久郡軽井沢町大字長倉 |
| アクセス | 【電車】北陸新幹線「軽井沢駅」まで約8.3㎞ (車約17分) 【車1】上信越自動車道「碓氷軽井沢IC」約14.9㎞(車約24分) 【車2】上信越自動車道「佐久IC」まで約12.4㎞(車約23分) |
| 土地面積 | 1068㎡(約323.07坪)通路含む |
| 延床面積 | 118.49㎡(約35.84坪) |
| 構造 | 木造合金メッキ鋼板ぶき2階建 |
| 建築年 | 2019年11月 |
| 収容人数 | 最大8名 |
| 間取り | 3ROOM・LDK・OUTDOOR LIVING・INNER TERRACE・SAUNA |
| 設備 | サウナ/温水プール/ジャグジー/床暖房 |
| 駐車場 | 4台分 |
| 眺望 | 林 |
| 運営状況 | 1棟貸し宿泊施設として稼働中(旅館業許可取得済み) |
| 運営継承方法 |
定期建物賃貸借契約(詳細についてはお問い合わせください) ※詳細開示は守秘義務契約の締結が必要となります |
|建物の特徴
設計・素材ともに競争力の高い築浅建物
2019年築という築浅であり、設備更新負担が低い点は投資上のメリットである。外観は特徴的な翼状フォルム、内部は吹き抜け・勾配天井による開放的な空間構成、ワイドウィンドウによる森の借景など、独自性が高い建築デザインである。インナーテラスやアウトドアダイニングは天候による利用制限が少なく、滞在満足度の向上に寄与する。加えて、用途に応じてレイアウト変更できる間取りは、幅広い宿泊ニーズに対応でき、稼働率・回転率の最適化につながる。
|敷地の特徴
管理効率が高く、視覚的価値の高いフラット敷地
敷地は1068㎡のフラットな地形で、維持管理の手間を抑えつつ、視覚的価値を高める植栽が整備されている。ガーデンの季節変化は宿泊体験価値を高め、写真映えによる集客力にも寄与する。運営上の優位性とブランディング要素を兼ね備えた外構計画である。
|ファシリティ
価格競争力を生む高付加価値設備
本物件は以下の設備を完備し、高価格帯の宿泊商品として販売可能である。
・サウナ:ガーデンビューで訴求力が高く、滞在体験価値を強く押し上げる
・ヒーテッドプール&ジャグジー:通年稼働により季節要因の収益変動を抑制
・全室床暖房:冬の軽井沢でも快適性を確保し、オフシーズン需要を確保
・アイランドキッチン:大人数・長期滞在の需要を取り込み収益性向上に寄与
これらの設備群は、単価向上・レビュー評価向上・リピート率向上の三方向で収益構造を支える。
|ロケーション
軽井沢の利便性と静穏性を両立したエリア
本物件が位置する長倉エリアは、軽井沢駅から車で約17分、佐久方面へのアクセスも良好である。上信越自動車道の両ICに対して中間点にあるため、季節的な渋滞の影響を受けにくく、移動ストレスが低い立地である。軽井沢72ゴルフ、風越公園、ショッピングプラザ、スキー場など、有力レジャー施設まで10km圏内に複数存在し、通年需要を喚起しやすい。生活利便性の高い「ツルヤ」も4.4km圏内に位置し、中長期滞在の受け皿としても有利である。
❚ 物件概要
| 物件名 | LEAVES / VILLA C |
| 物件種別 | 一棟貸し宿泊施設 |
| 販売価格 | 22,500万円(税抜) |
| 所在地 | 長野県北佐久郡軽井沢町大字長倉 |
| アクセス | 【電車】北陸新幹線「軽井沢駅」まで約8.3㎞ (車約17分) 【車1】上信越自動車道「碓氷軽井沢IC」約14.9㎞(車約24分) 【車2】上信越自動車道「佐久IC」まで約12.4㎞(車約23分) |
| 土地面積 | 1068㎡(約323.07坪)通路含む |
| 延床面積 | 118.49㎡(約35.84坪) |
| 構造 | 木造合金メッキ鋼板ぶき2階建 |
| 建築年 | 2019年11月 |
| 収容人数 | 最大8名 |
| 間取り | 3ROOM・LDK・OUTDOOR LIVING・INNER TERRACE・SAUNA |
| 設備 | サウナ/温水プール/ジャグジー/床暖房 |
| 駐車場 | 4台分 |
| 眺望 | 林 |
| 運営状況 | 1棟貸し宿泊施設として稼働中(旅館業許可取得済み) |
| 運営継承方法 |
定期建物賃貸借契約(詳細についてはお問い合わせください) ※詳細開示は守秘義務契約の締結が必要となります |
| オーナー特典 | あり |
| 取引様態 | 仲介 |
| 物件番号 | KK-0563 |
| 間取図・敷地図 | ![]() ※クリックして拡大 |
ニュースレター
新着物件や非公開物件をメールマガジンで配信しています。
最新情報をいち早くお届けしていますのでぜひご登録ください。
Sign up to our mailing list for the newest properties, private properties delivered to your inbox.

