TALIESIN

TALIESIN
熱海 戸建 山 9,000万円
力強くも繊細な建築美
TALIESINは単なる居住空間ではなく、時間と空間を贅沢に使い、建築・自然・美意識が交錯する静謐な舞台といえる。
music select|Louis Armstrong And The All-Stars – Cabaret|02:43
LOCATION
伊豆山の尾根、静寂と眺望に包まれた場所
本物件が位置する伊豆山は、熱海市街から程近くにありながら、相模湾を眼下に望む尾根の先という特別なロケーションにある。豊かな雑木林が四季の変化を繊細に映し出し、周囲には点在する別荘群が静けさを保ちつつ、確かな品格を宿している。伊豆・相模・駿河という三国にまたがる神域の中心に鎮座する伊豆山神社本宮にも近接し、この地が持つスピリチュアルな歴史的背景もまた、本邸宅の存在価値を高めている。熱海港や市役所、湯河原の中心地、そして西熱海ゴルフコース・熱海ゴルフ倶楽部といったレジャー施設にもアクセスが良く、都市的な利便性と自然の静謐さを同時に享受できる立地である。


■周辺施設
熱海中心地(熱海市役所)
湯河原中心地(隣町役場)
西熱海ゴルフコース
熱海ゴルフ倶楽部
熱海港(定期船乗り場)
国際医療福祉大学病院
伊豆山神社
こごめの湯(日帰り温泉)

ARCHITECTURE
邸宅建築の一つの完成形
本邸宅は、名建築家フランク・ロイド・ライトの影響を彷彿とさせる力強くも繊細な建築美を宿す。重厚な鉄筋コンクリート造に銅板葺きを合わせた構造は、見た目の堅牢さのみならず、時を経てもなお味わいを深める素材感に満ちている。施工は、伝統建築から高級住宅、商業施設に至るまで多様なプロジェクトを手掛けてきた株式会社佐藤秀。確かな技術と審美眼が、細部に至るまで精緻に行き渡っている。石・木といった自然素材の選定と配置、そして洋の重厚さと和の上品な意匠が共存する空間設計は、設計者の高度な美意識を物語るものであり、「邸宅」と呼ぶに相応しい設えとなっている。


PLAN
贅沢さと実用性を兼ね備えた空間構成
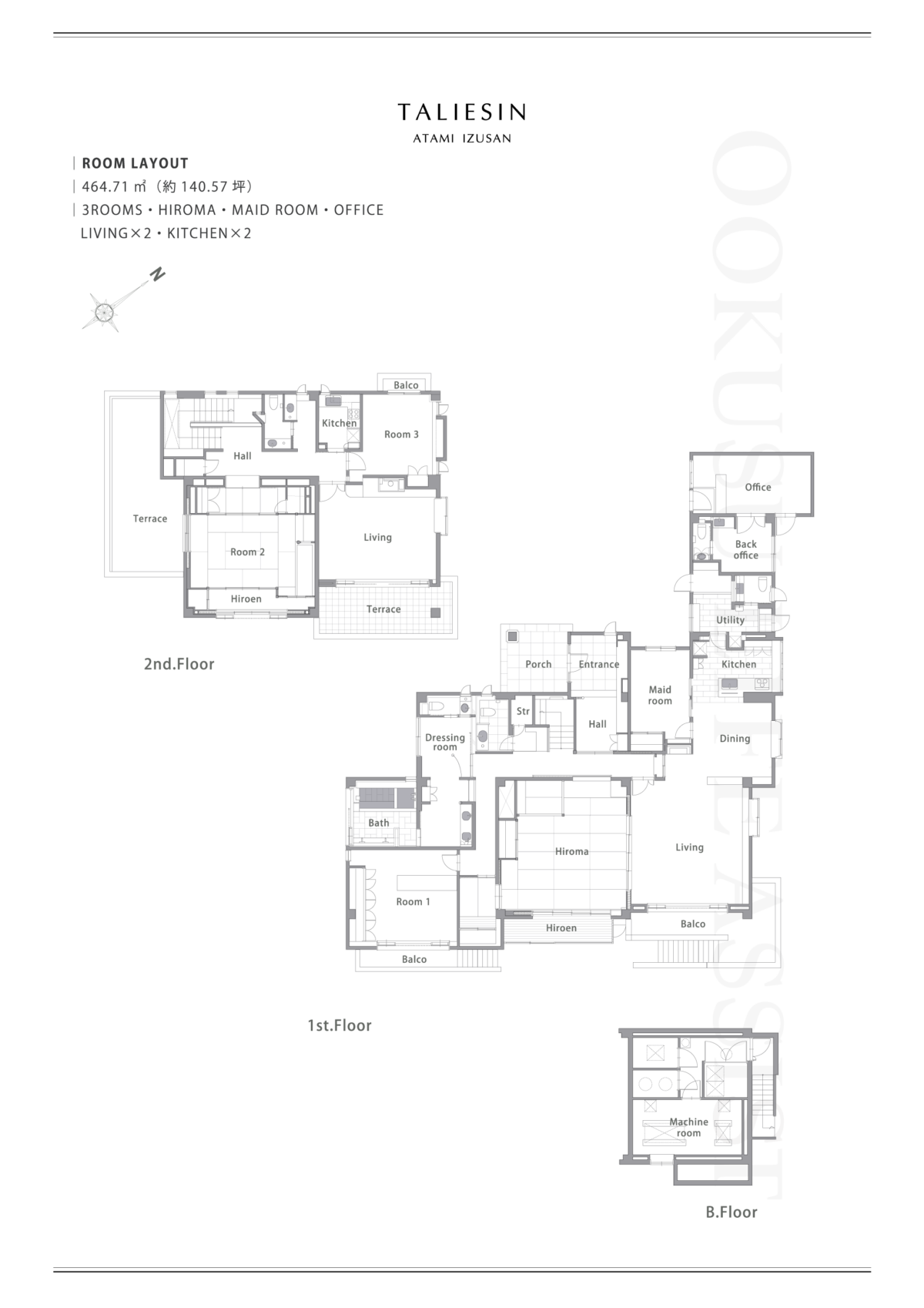
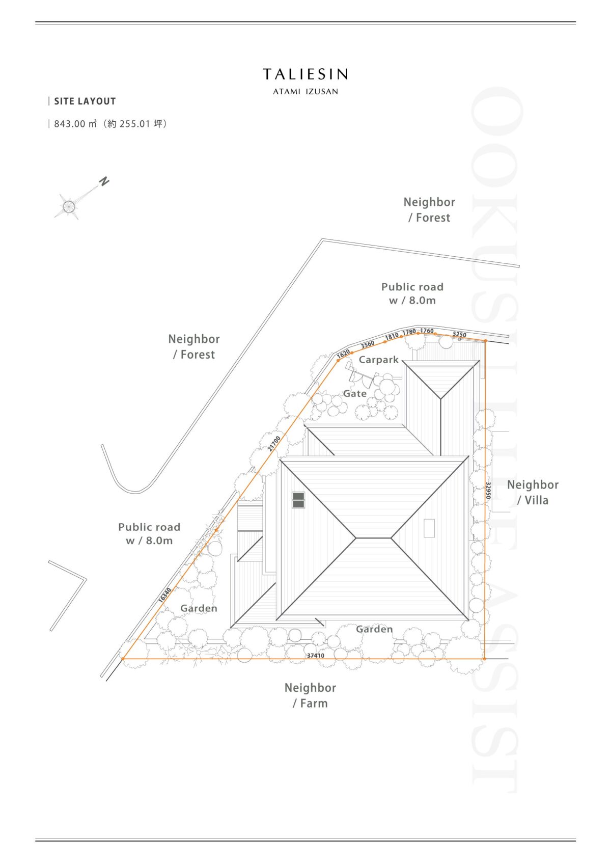
総延床面積464.71㎡(約140.53坪)、土地面積843㎡(約255.01坪)という広大なスケールを活かし、居住スペースには3室の独立したルームに加え、広間(HIROMA)、メイドルーム、オフィス、リビング×2、キッチン×2が配されている。家族での長期滞在や、ゲストを招いての滞在、または法人利用によるプライベートなワークスペースの確保など、多様なライフスタイルに対応可能な構成である。
二つのキッチンとリビングは、住み分けや接待・会食といった用途の分化に適し、プライバシー性と機能性を高い次元で両立させている。











GARDEN
和と洋の調和を描く庭園
敷地内に設えられた庭園は、和洋の意匠を巧みに融合させた独自の景観を持つ。自然石の配列や低木の剪定に見る繊細な和の技巧と、開放感を与える洋の造園的要素が対話しながら、住まう者に心地よいリズムを与えている。空間全体がひとつの風景画のように構成され、室内外の境界を曖昧にする演出によって、建物と自然が一体となるような設計意図が感じられる。





ACCESS
首都圏からの良好なアクセス
東海道新幹線「熱海」駅から約5.1km。都心からのアクセスが良好でありながら、現地に到着すれば一気に日常の喧騒から解き放たれる特別なロケーションである。リモートワークや二拠点生活、あるいは企業の迎賓用途としても極めて高いポテンシャルを有している。

物件概要 ―PROPERTY OVERVIEW―
| 物件名 | TALIESIN(タリアセン) |
| 種別 | 中古戸建 |
| 価格 | 9,000万円 |
| 所在 | 静岡県熱海市伊豆山 |
| アクセス | 東海道新幹線「熱海駅」 約5.1㎞ |
| 土地面積 | 843㎡(約255.01坪) |
| 建物面積 | 464.71㎡(約140.53坪) |
| 構造 | 鉄筋コンクリート造銅板葺 地下1階付2階建 |
| 建築年 | 1989年7月 |
| 間取り | 3ROOMS・HIROMA・MAID ROOM・OFFICE・LIVING×2・KITCHEN×2 |
| 敷地図・間取図 |
※クリックして拡大 |
Gallery
ニュースレター
新着物件や非公開物件をメールマガジンで配信しています。
最新情報をいち早くお届けしていますのでぜひご登録ください。
Sign up to our mailing list for the newest properties, private properties delivered to your inbox.
