THE PEACOCK

THE PEACOCK
軽井沢 戸建 高原 成約済
静寂と品格を愛するマウンテンヴィラ
こだわり抜かれたクラシカルな意匠と、“オールドスクール”の美学
ゴルフコースを中心に、豊かな森とファームが広がる中軽井沢。
その一角、600坪超のフラットな敷地に、ひときわ重厚なヴィラが佇む。
並木道の先に望むのは、雄大な浅間山。
ゲートをくぐり、ロングアプローチを抜けた先に現れるのは、
強度と耐久性を備えた構造に、クラシカルな意匠が息づく一棟。
天井高6m超の吹き抜けと、アシュレイ社による家具のコーディネート。
設計の随所に通うのは、ただの豪奢ではなく “設えの思想”。
生活動線、光の入り方、視線の抜け──
空間と時間の質を重ねるための答えが、静かに仕込まれている。
周囲の自然と呼吸を合わせながら、
洗練されたカントリージェントルマンの気配をまとうこの邸宅は、
単なる所有物ではなく、“暮らしの哲学”をかたちにした住まいである。
music select | James Taylor – Fire and Rain|03:24
Garden
庭というより、空間そのものが設計されている
600坪超の敷地は、数字の印象よりも遥かに静かで、伸びやか。
敷地の高低差は抑えられ、歩くほどに視線が遠くへ抜けていく。
芝の柔らかさ、木々の間を抜ける風、テラスに落ちる木漏れ日──
いずれも意図的に設計された“環境”としての庭。
ガーデンというより、“暮らしの一部”として立ち上がる外構空間。
ガラス越しに眺めるだけではなく、歩き、座り、深呼吸するためにある。
騒がしさのない土地だからこそ、音ではなく質感が暮らしを満たしていく。
The House
感性だけでなく、構造にも軸がある
天井高6m超のリビングが、窓一面に森の緑を映し出す。
その開放感は、空間を広く見せるための演出ではない。
心をほどく“余白”として、建築の内側に計算されている。
家具はアシュレイ社によるトータルコーディネート。
クラシカルで落ち着いた設えが、薪暖炉やストーン調の床材と静かに呼応する。
重心が低く、目線が安定する室内設計は、
外の風景と競うことなく、内側の美意識に没入させてくれる。
構造は2×6工法、高断熱材、床暖房と薪暖炉──
四季のある土地に対する、確かな応答が組み込まれている。
“贅沢”を語るのではなく、“整っている”という感覚そのものを
体感として差し出してくれる空間である。
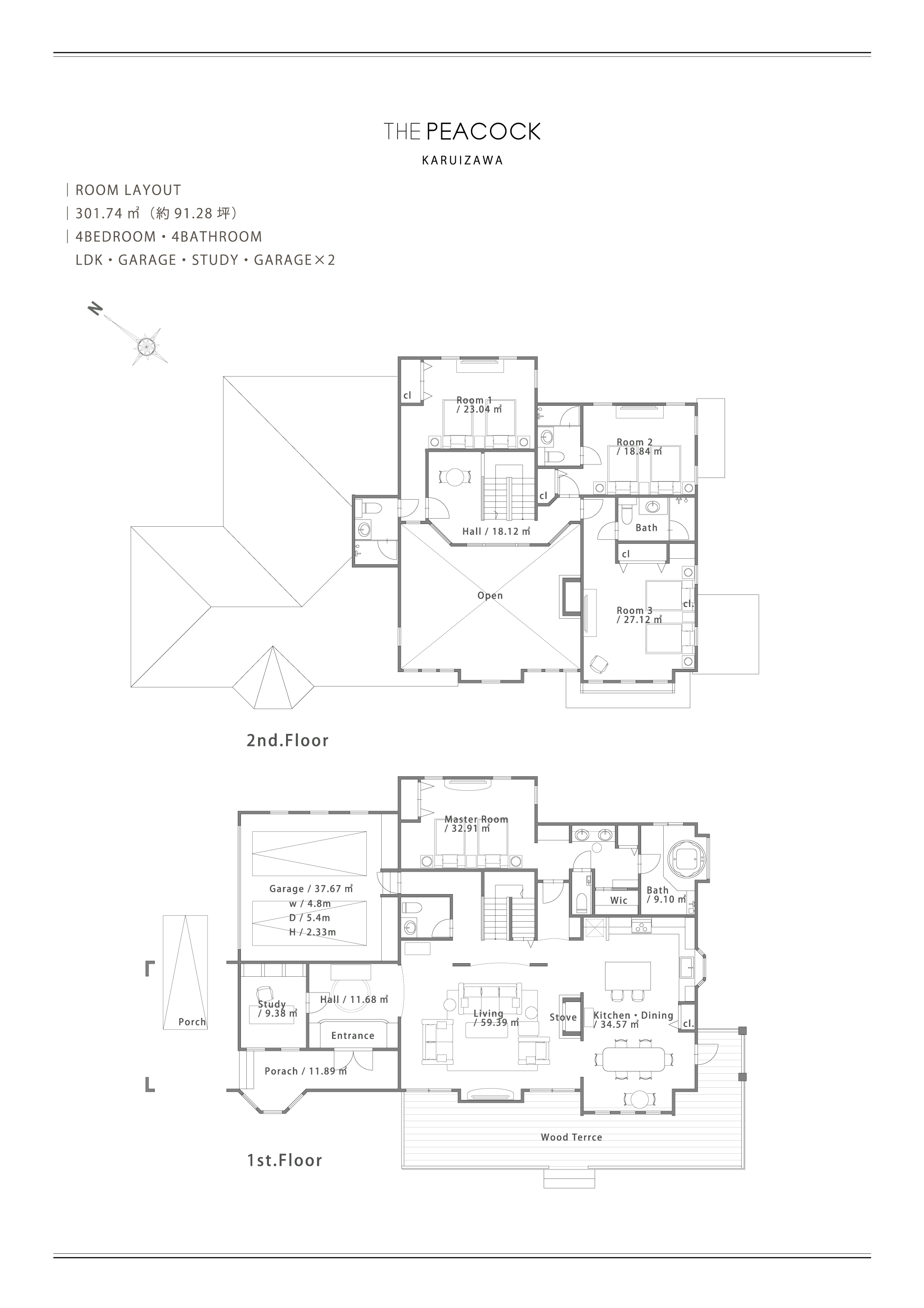
❚ 物件概要
| 物件名 | THE PEACOCK(ピーコック) |
| 販売価格 | 成約済 |
| 物件種別 | 新築戸建 |
| 所在地 | 長野県北佐久郡軽井沢町長倉 |
| 交通 | 北陸新幹線「軽井沢」駅 約6.5㎞ 上信越自動車道「碓氷軽井沢IC」まで約16.2㎞ |
| 土地面積 | 1984㎡(約600.16坪) |
| 延床面積 | 301.74㎡(約91.28坪) |
| 建物構造 | 木造合金メッキ鋼板葺平家建 |
| 間取り | 4BEDROOM 4BATHROOM LDK(93.96㎡) GARAGE STUDY INNER GARAGE×2 |
| 駐車場 | 4台(内2台ビルトインガレージ) |
| 建築年 | 2024年10月新築 |
| 現況 | 未入居 |
| 設備 | インナーガレージ 2×6木造枠組壁構造 高断熱(発泡ウレタン50mm ペアガラス(樹脂サッシ) 床暖房 薪暖炉 エアコン |
| 眺望 | 林 |
| ロケーション |
・中軽井沢カントリークラブ…約250m |
| 引き渡し | 即可能 |
| 取引態様 | 仲介 |
| 物件番号 | KK-0520 |
ニュースレター
新着物件や非公開物件をメールマガジンで配信しています。
最新情報をいち早くお届けしていますのでぜひご登録ください。
Sign up to our mailing list for the newest properties, private properties delivered to your inbox.


